본문 바로가기
주메뉴 바로가기
(주)에스티
회사소개
CEO 인사말
회사연혁
조직도
오시는길
사업분야
배수시설
점검시설
방음시설
보강그라우딩
조경공사
기타사업
홍보센터
NEWS
e-brochure
견적요청
채용안내
채용안내
사업분야
점검시설
배수시설
점검시설
방음시설
보강그라우딩
조경공사
기타사업
점검시설
일체형 이중안전 점검시설
길이가변형 점검시설 계단
일체형 이중안전 점검시설
제품의 개요
일체형 이중안전 전검시설
내구성이 보강된 일체형 안전점검시설 자재 및 시공방법
개요
주요부재인 지지포스트를 일체화시켜 내구성을 증대시키고 점검자 및 설치 단계에서 작업자의 안전로프 걸이구를 구비하여 안전성을 높인 구조
안전구 체결 형태
일체형 안전구
측면 레일형 안전구
상부레일형 안전구
※ 안전구 체결로프 : PP로프, 와이어로프, 생명줄로프 등 호환가능
제품의 특징
일체형 포스트
일체형 포스트로 제작ㆍ시공 효율 증대
구조계산과 공인인증기관 실물시험을 통한 안전성 확보
난간의 곡선처리로 미관 확보(경관교량 적용 우수)
앙카부
작업자의 안전로프 걸이구 구비(시공단계부터 안전성 확보)
높이조절형 브라켓을 이용하여 교각코핑높이에 맞춤제작 가능
높이조절용 브라켓 상단 안전구 설치로 통로 등 후속 시공 작업시 안전사고 예방
발판부
일체형 포스트 발판부, 난간부의 개방 구조로 풍압에 의한 안전성 확보
타공 발판 3단 구조의 끼움형태로 안전성 확보
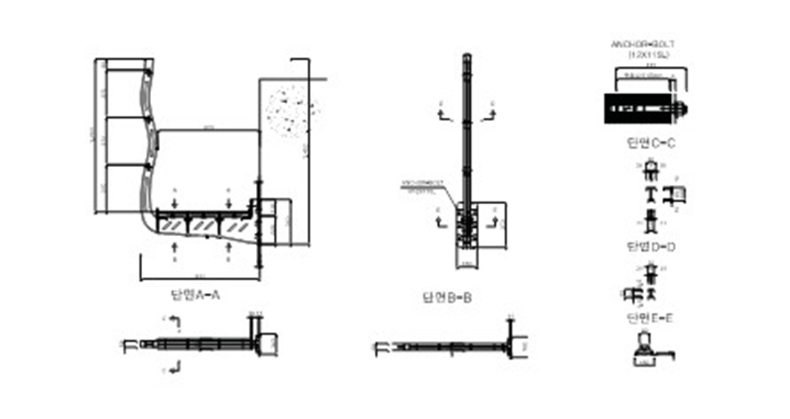
제품의 도면
점검통로 사시도
일체형 BRACKET 상세
점검통로 체결 상세
분리형 타공판 상세
높이 조절형 BRACKET
HANDRAIL POST 상세
F-BAR, H-BAR 상세